Das kompakte Hofhaus als Einfamilienhaus
Verträgliche Einfamilienhäuser auf Basis der neuen Typologie des „kompakten Hofhauses“. Ein Gastbeitrag von Dr. Peter Bonfig und Prof. Dr. Jan Cremers

Das sog. „kompakte Hofhaus“ wurde als neuartiger Hofhaustyp an der Hochschule für Technik Stuttgart (HFT) entwickelt und untersucht.
Zu Quartieren addiert stellt er den Bewohnern bei geringem Landverbrauch urbane Lebensräume zur Verfügung und kann hohe Dichte, Diversität von Nutzung sowie ein hohes Maß an Privatheit und Wohnqualität in Innen- wie Außenräumen miteinander vereinigen, in Neubau- wie in Bestandsituationen. Definitionsgemäß wird dies dadurch erreicht, dass nicht einsehbare Höfe / Außenräume als ausschließlich private Nutzflächen in die Gebäudestruktur integriert werden (anstelle von exponierten „Abstandsflächen“ mit geringerem Nutzwert außerhalb des Gebäudes) und über diese Bereiche auch die Belichtung und Belüftung erfolgen kann. Innen- und Außenräume können so zu einem geschützten und eng miteinander verzahnten Lebensraum verschmelzen.
Die bisherigen Ergebnisse der seit 2017 laufenden, DFG-
Hintergrund
Ein Drittel der Privathaushalte in Deutschland besitzt ein Einfamilienhau
Dem gegenüber besteht kein ausreichendes Angebot an Grundstücken in guten Lagen. Außerdem bringt die Wohnform des konventionellen Einfamilienhauses – direkt und indirekt – einen überproportional hohen Verbrauch an Ressourcen (Flächenverbrauch, Materialverbrauch, Energieverbrauch, Erhöhung der Verkehrsströme etc.) mit sich. Mit der geringen urbanen Dichte sind zudem diverse infrastrukturelle Nachteile in der Versorgung verbunden. Letztlich ist die von den meisten Bewohnern angestrebte Privatheit im Innen- und Außenbereich auf kleinen bis durchschnittlichen Grundstücksgrößen – ca. 400 bis 600 m

Links: Frei stehende „extrovertierte“ Gebäudetypen. Trotz hohem Flächenverbrauch verbleiben unter Einhaltung gesetzlicher Abstände keine Freiflächen mit angemessener Privatsphäre.
Rechts: Mit kompakten Hofhäusern verringert sich der Flächenverbrauch. Die Freiflächen werden als Höfe / abgeschirmte Außenräume mit hoher Privatheit in die Gebäudestruktur genommen und sind dadurch sehr individuell nutzbar. Die Bebauungsdichte wird gleichzeitig erhöht.
Forschung: Hypothese und Lösungsansatz
Die Konzeption des „kompakten Hofhauses“ kann einen wertvollen Beitrag leisten, die Wünsche vieler Menschen nach einer privaten und individuellen Wohnform als „Minimalterritorium“ im Eigenbesitz mit Prinzipien der Nachhaltigkeit zu versöhne
Hof- oder Atrium- bzw. Patiohäuser haben in vielen Kulturen und Klimazonen eine jahrtausendealte Tradition, auch im 20. Jahrhundert wurden weltweit teppichartige Siedlungen mit Hofhaustypen realisier
Die Forschungsgruppe von Prof. Jan Cremers hat es sich als Ziel gesetzt, den Typus des Hofhauses auf die aktuellen Anforderungen einer nachhaltigen Urbanisierung hin neu zu interpretieren und weiterzuentwickeln. Dabei wurde der Hypothese nachgegangen, dass Hofhäuser ein Potenzial für nachhaltige Quartiere hoher Dichte bei einem gleichzeitig hohen Maß an Privatheit und Wohnwert haben. Damit bieten sie einen möglichen Ausweg aus dem Dilemma konventioneller Typen (Hohe Dichte = wenig Privatheit, v.a. in den Außenräumen).
Weiter wurde angenommen, dass auf den Prinzipien und inhärenten Gesetzmäßigkeiten des Hofhauses aufbauend mit einem interdisziplinären und systematischen Ansatz mit aktuellen Werkzeugen eine optimierte Typologie entwickelt werden kann, bei denen die Höfe als private, vor Einblicken geschützte Außenräume nur jeweils einer Partei zugeordnet werden. Die Zielsetzung ist eine Art „Baukasten“ aus „kompakten Hofhäusern“, die sich als „Bausteine“ vielfältig zu urbanen Quartieren hoher Dichte addieren lassen. Das Thema ist somit gleichermaßen in der Architektur wie im Städtebau angesiedelt.
Die Methodik und die Ergebnisse der systematischen typologischen Entwicklung und die erarbeiteten Grundlagen zur Funktionsweise kompakter Hofhäuser wurden bereits 2021 in Buchform publizier
Je nach Variation des jeweiligen Grundkonzepts und abhängig von Größe und Proportion kann ein Gebäude ein bis vier Nutzungseinheiten aufnehmen, wobei das Erdgeschoss meist gewerblicher Nutzung und/oder Nebennutzungen dient, was auch in vielen Fällen eine aufwendige Unterkellerung erspart. Als zentrales Merkmal verfügt jede der Wohneinheiten über mindestens einen privaten, von anderen Parteien oder von der Straße oder Nachbargebäuden nicht einsehbaren Hof als Außenraum, der so privat wie ein Badezimmer ist. Über die geschützten und begrünten Höfe werden Innenräume belichtet und belüftet, Innen- und Außenräume bilden ein Kontinuum, bei gutem Wetter und guter Öffenbarkeit der Fassaden zu den Höfen verschmelzen Innen und Außen zu einer durchgehenden Nutzfläche.
In dem interdisziplinär aufgestellten Forschungsprojekt wurde die Funktionsweise grundlegend untersucht und einzelne Typen für den Standort Stuttgart optimiert. Dies betraf vor allem die Organisation von Raum (innen wie außen) sowie die Erschließung, Belichtung, Belüftung, Akustik, den Brandschutz, die Baukonstruktion und im Ergebnis umweltgerechte Energie- und Materialflüsse bei Herstellung, Betrieb und Entsorgung bzw. Wiederverwertung. Dies alles erfolgte mit hoher Allgemeingültigkeit nicht im Sinne individueller architektonischer Entwürfe bzw. städtebaulicher Interpretationen, sondern „abstrakt“ für flaches Gelände ohne konkrete Grundstückssituation und Nutzerwünsche.
Das kompakte Hofhaus als Einfamilienhaus
Von den erwähnten bisher acht Grundkonzepten (K1 bis K8) sind vier besonders geeignet, urbane Quartiere oder Ensembles hoher Dichte (GFZ 1,5 bis knapp 3 bezogen auf die einzelnen Parzellen) mit Gebäuden im Sinne von „Einfamilienhäusern“ aber nach der Logik des kompakten Hofhauses umzusetzen. Dabei benötigen die einzelnen Gebäude lediglich Grundstücke von ca. 60 bis 120 m2 für ein attraktives, sehr privates und individuelles Wohnangebot mit vor Einblicken geschützten Außenbereichen als Höfe und Dachterrassen. Diese Außenräume auf meist unterschiedlichen Ebenen ergänzen und erweitern die Innenräume (und umgekehrt) zu einem großzügigen und oft mehrgeschossigen Raumerlebnis mit hohem Nutzwert.
Auch kann bei einem Typen, der aus dem Grundkonzept für eine bestimmte Grundstücksgröße abgeleitet ist, die Nutzung und Aufteilung der Flächen im Innen- und Außenraum je nach Nutzerwunsch und Lebensform (z. B. Familie mit Kindern) unterschiedlich erfolgen und auch auf veränderte Anforderungen im Laufe der Nutzungszeit reagieren. So lässt sich das Raumangebot innerhalb eines Gebäudes unterschiedlich nutzen bzw. verteilen und separieren sowie (Klein-)Gewerbe integrieren. Dabei kann vor allem der Gebrauch des Erdgeschosses stark variieren, mit Nebennutzungen wie Abstellen (einschließlich Fahrräder und Kraftfahrzeuge) und kleinen Büros, Läden etc. oder auch teilweise Wohnzwecken dienen.
Die individuellen Interpretationen / Varianten der Konzepte versprechen bei Addition, mit drei geschlossenen Seiten zum Anbauen, urbane Quartiere hoher Dichte und Heterogenität. Damit einhergehend kann sich das Angebot an Dienstleistungen (einschl. ÖPNV) gegenüber typischen monofunktionalen Einfamilienhausgebieten deutlich verbessern.
In der Regel bieten solche Gebäude mit Höfen auf unterschiedlichen Ebenen (einschl. Dachterrassen) auch Balkone an, die einsehbar zum öffentlichen Raum exponiert sind. So kann der Bewohner je nach Bedarf (Tages-/Nachtzeit, Wetterbedingungen) Sonne oder Schatten wählen, sich geschützt im Innenhof aufhalten oder den Kontakt zum öffentlichen Leben suchen. Das vielfältige Angebot in Innen- und Außenräumen ermöglicht auch innerhalb des kompakten Hofhauses (Familie, Wohngemeinschaft) Bereiche des gemeinsamen Lebens wie der ungestörten Rückzugsmöglichkeit und kann in der konkreten Ausprägung so auch verschiedenen Wohnformen gerecht werden. Die im Regelfall extensiv begrünten Dächer lassen sich mit Solarthermie oder Fotovoltaik-Modulen kombinieren.
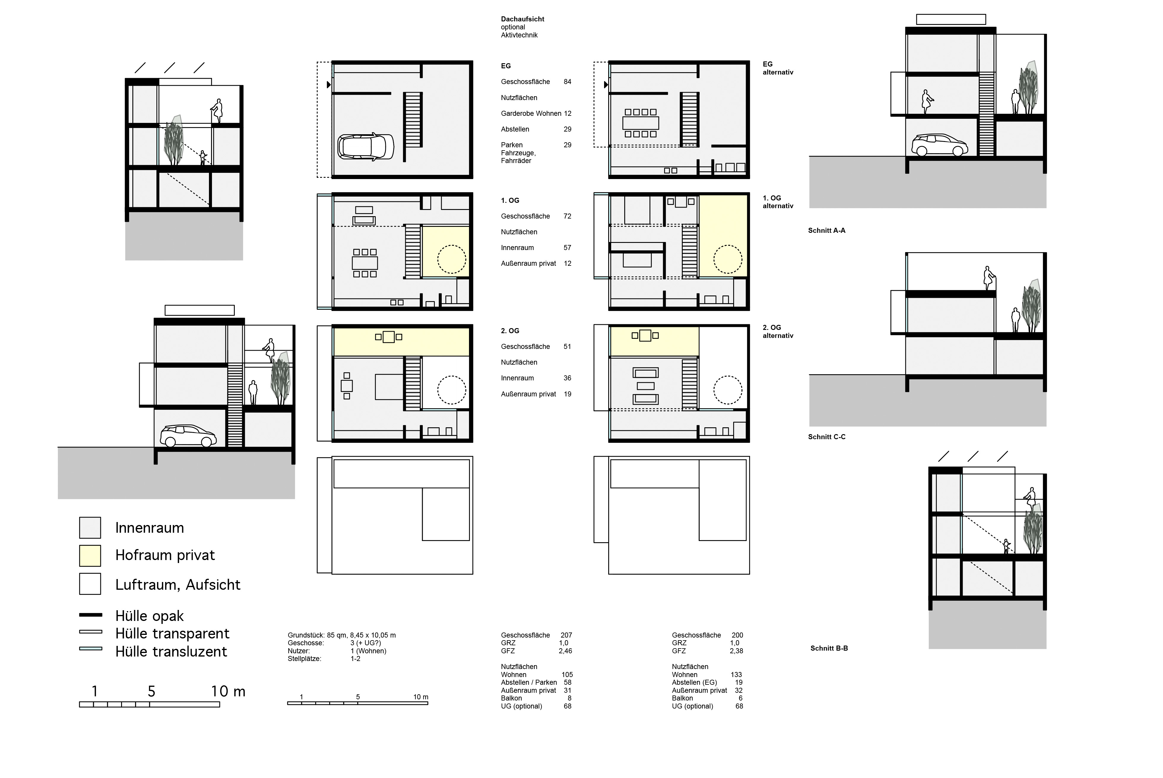
Zwei Beispiele mit unterschiedlicher Grundfläche
Grundstücksgrößen und Proportionen der gewählten Beispiele unterscheiden sich deutlich. Die Grundfläche bzw. Parzelle mit 121 m² der kompakten Hofhausvariante nach Konzept K1 hat eine lang gestreckte Proportion von 1:3 (Bild 2), während die nach Konzept K2 mit 85 m² annähernd quadratisch ist (Bild 3). Beide Varianten kommen ohne Untergeschoss aus, Abstell- und Technikräume liegen ebenerdig im Erdgeschoss, welches neben Garderobe und Platz für Fahrräder, Kinderwagen etc. optional auch bis zu zwei Kfz-Stellplätze aufnehmen kann. Die notwendigen Treppen als gerade Läufe ohne eigenen Treppenraum erschließen die Geschosse und unterstützen die Tageslichtnutzung.
Als weitere Gemeinsamkeit schließen Nassbereiche (Bäder und Küchenzeilen) an einen durchgehenden Installationsschacht an. Bei der Verteilung der Nutzungen auf die Geschosse und Separierung der Flächen / Räume gibt es Spielraum, Küchen lassen sich z. B. offen in den fließenden Wohnraum integrieren oder eigenen abgeschlossenen Räumen zuordnen.

Typ 121-K1-3-1-2.8, Längsschnitt und Grundrisse in zwei Nutzungsvarianten, ggf. auch auf die jeweilige Orientierung reagierend. Grundstücksgröße 6,3 m × 19,2 m = 121 m².
Typ 121-K1-3-1-2.8:
121 Grundstücksgröße (m2)
K1 Konzept #
3 Anzahl Geschosse
1 Anzahl Nutzungseinheiten
2.8 Geschossflächenzahl (GFZ)
Der Typ nach K1 mit seinem zweigeschossigen zentralen Hofraum verfügt auf der vierten Ebene über einen Dachhof, der an die Straßenfassade grenzt und sich z. B. über bewegliche vertikale Lamellen temporär zum öffentlichen Raum vom Nutzer öffnen lässt. Der Hof im 2. Obergeschoss des Typen nach K2 ist ebenso zum Straßenraum bei Bedarf visuell erweiterbar, auch hat er direkten Bezug zum zentralen zweigeschossige Hof im rückwärtigen Abschnitt des Gebäudes. Falls keine Kfz-Stellplätze in die kompakten Hofhäuser aufgenommen werden, ist im Erdgeschoss wahlweise gewerbliche Nutzung oder weitere Wohnnutzung möglich.
Beim vorgestellten Typen nach K1 beträgt die Wohnfläche 160 m² bzw. ohne integrierte Stellplätze 183 m². Diese wird mit insgesamt 60 m² privatem Außenraum bereichert, zusätzliche Balkone sind zum öffentlichen Raum ausgerichtet.
Die Wohnfläche des Typen nach K2 beläuft sich in Summe je nach Hofsituation auf 95 bzw. 105 m² und ohne integrierte Stellplätze auf 133 m². Privater Außenraum / Höfe auf zwei Ebenen mit insgesamt 32 m² und zusätzliche Balkone auf der Seite zum öffentlichen Raum ergänzen das Flächenangebot.

Typ 85-K2-3-1-2.5 (links) und Typ 85-K2-3-1-2.4 (rechts)
Schnitte und Grundrisse. Grundstücksgröße 8,5 × 10,0 = 85 m².
Urbane Quartiere mit Einfamilienhäusern
Unterschiedliche Typen/Varianten von kompakten Hofhäusern, basierend auf den acht unterschiedlichen Konzepten / Grundtypen lassen sich unter Einhaltung bestimmter Regeln vielfältig miteinander zu Ensembles oder urbanen Quartieren hoher Dichte (GFZ 1,5 bis > 2,5) kombinieren. Wie bei anderen konventionellen Gebäudetypen entstehen dabei öffentliche, halböffentliche oder private Außenräume, z. B. als Straßenräume oder Plätze oder Spielflächen für Kinder. Dabei spielt es keine Rolle, ob die Gebäude für nur eine Partei oder für mehrere entwickelt sind. Mit zusätzlicher gewerblicher Nutzung als Teil der kompakten Hofhäuser oder unabhängig von ihnen kann Heterogenität der Nutzungen erreicht werden. Die Gebäude können direkt auf der Grenze zum öffentlichen Raum liegen oder sie erhalten vorgelagerte Flächen / Grünzonen als Übergang, was auch mit Hofsituationen zum z. B. Straßenraum einhergehen kann. Ergänzend zu den Möglichkeiten der einzelnen Gebäudeeinheiten lassen sich je nach Standort auf das ganze Quartier bezogen alternativ Lösungen u.a. für folgende Aufgaben und Aspekte finden:
– Energieversorgung
– Regenwassermanagement
– großzügige Außenanlagen zur gemeinschaftlichen Nutzung und zum Spielen von Kindern
– Abstellen von Kraftfahrzeugen (Car-Sharing etc).
Umbau von Siedlungen geringer Dichte in urbane nachhaltige Quartiere hoher Dichte
Besondere Herausforderungen und Möglichkeiten bietet der Themenkomplex der Nachverdichtung bzw. der Umbau von bestehenden bebauten Gebieten sehr geringer Dichte in solche mit eher urbanem Charakter und wesentlich höherer Ausnutzung von bereits erschlossenem Baugrund als wertvolle Ressource.
In Deutschland sind von etwa 19 Millionen Wohngebäuden knapp 16 Millionen Ein- und Zweifamilienhäuser. Auch in Großstädten wie Berlin und Hamburg machen Einfamilienhäuser mehr als die Hälfte des Bestandes aus. Knapp 31 Prozent aller Haushalte besaßen 2018 in Deutschland ein Einfamilienhaus und nochmals die gleiche Anzahl würde diese Wohnform allen anderen vorziehen [2, 3].
Mit steigender Tendenz werden Einfamilienhäuser aus dem Bestand der 1960er- und 1970er-Jahre und somit ihre Grundstücke durch Generationswechsel frei. Meist sind diese Gebäude sanierungsbedürftig, eine Ertüchtigung ist aber unter wirtschaftlichen und auch meist funktionalen Gesichtspunkten oft fragwürdig, sodass immer wieder Abriss und Neubau erwogen werden.
Vor diesem Hintergrund stellt der teilweise oder gar komplette Umbau solcher Einfamilienhausgebiete durch kompakte Hofhäuser eine Alternative dar, welche deutlich mehr Menschen das Wohnen im eigenen Haus ermöglichen kann, ohne dass neuer Baugrund erschlossen werden muss. Ein schrittweiser Austausch – also Abriss und Neubau – der Gebäude auf wesentlich kleinflächigeren Parzellen ist voraussichtlich nachhaltiger als die aufwendige Sanierung bzw. Nachverdichtung mit denselben Gebäudetypen. Die Ausnutzung des Baugrunds lässt sich so voraussichtlich bis um den Faktor 4 steigern.
Wie sich in den nächsten Jahrzehnten die Bedürfnisse und Erwartungen der Menschen zum Wohnen verändern werden, ist nicht vorauszusehen, auch wenn die pandemische Lage der letzten Jahre schon neue Tendenzen aufgezeigt hat. Die Interpretation von Privatsphäre könnte dabei eine wichtige Rolle spielen. Insofern wird auch das Verhältnis zwischen Individuum und Gesellschaft die Art des Wohnens und Bauens beeinflussen und Gebäudetypen mit vergleichbaren Zielsetzungen Vorschub leisten. Das kompakte Hofhaus stärkt folgende Aspekte:
– individuelles Wohnen auf eigenem Grund bzw. kleinen und überschaubaren Parzellen, die aber in komplexe Strukturen eingebunden sind,
– Aufwertung der individuellen Lebensqualität in urbanen Strukturen mittlerer und hoher urbaner Dichte und damit der Stadt selbst,
– Stärkung des Wohneigentums bei großer Freiheit in der Gestaltung des eigenen Lebensraumes,
– erhöhte Sicherheit des privaten Wohnumfelds gegen Bedrohungen von außen,
– Erschließung von bisher konventionell kaum nutzbaren Flächen zum hochwertigen Wohnen (z. B. bei hoher Lärmbelastung oder in einer Umgebung, die nur drei oder gar vierseitigen Einbau zulässt).
Auch im Rahmen von Klimaveränderung und Klimaanpassung können Hofräume mit ihrem Potenzial für die Schaffung vorteilhafter mikroklimatischer Bedingungen an Bedeutung gewinnen, vor allem im Vergleich zu Alternativen ähnlich hoher Dichte.
Was können wir tun
Fallbeispiel für den Umbau einer typischen Siedlung aus den 1960er-Jahren mit geringer Dichte in eine langfristig wesentlich nachhaltigere urbane Struktur. Schematische Darstellung eines zeitlichen Zwischenstandes, Lageplan und schematischer Schnitt.
Doppelhaushälften mit Garagen als Grenzbebauung auf etwa 500 - 800 m² großen Grundstücken bilden den Bestand. Die zweigeschossigen Gebäude (EG + 1. OG + ausgebautes Dach) weisen etwa eine Bruttogeschossfläche von 200 bis 220 m² auf, was einer Ausnutzung des Baugrunds bzw. einer Geschossflächenzahl (GFZ) von 0,3 entspricht.
Mit kompakten Hofhäusern (z. B. nach Konzept K1 und K2) lässt sich unter Einhaltung der Abstandsflächen (0,4 × H) zu den bestehenden konventionellen Gebäuden und Grundstücksgrenzen die Ausnutzung bzw. Geschossflächenzahl auf bis zu 1,6 steigern. Der ca. 50 bis 60 Jahre alte Bestand (im Regelfall noch unsaniert) wird dabei in Schritten durch kompakte Hofhäuser ersetzt. Dies kann gleichzeitig mit einer Teilung oder auch Zusammenlegung der Grundstücke einhergehen.
Bei Grundstückspreisen in Metropolregionen von ca. 1000 bis 5000 Euro lassen sich so von einem Grundstücksbesitzer ca. 500 000 bis 2.5 Millionen Euro erwirtschaften. Die Erhöhung des Maßes der baulichen Nutzug wird im Regelfall nach Gesetzen der Marktwirtschaft die Bodenpreise noch weiter steigen lassen. Dadurch wird ein starker wirtschaftlicher Anreiz zum Abriss, Verkauf und Neubau geschaffen, dem sich voraussichtlich nur wenige entziehen können. Damit ließen sich nicht nur die Kosten für die Sanierung der bestehenden konventionellen Gebäude (ca. 150 000 bis 300 000 Euro) einsparen, sondern auch gleich der Neubau z.B. auf einem Grundstück mit ca. 170 m² komplett finanzieren und womöglich Geldmittel für andere Lebensbereiche und Investitionen schaffen. So entsteht für Bauwillige, Kaufinteressenten und Investoren wertvoller Baugrund in guten Lagen (Innenentwicklung).

Quellen
-
1
Deutsche Forschungsgemeinschaft DFG, Geschäftszeichen CR 557/2-1 und CR 557/2-2
-
2
Statistisches Bundesamt, www.destatis.de, Dezember 2019.
-
3
Matthias Streit, Trotz Niedrigzinsen: Hausbesitzer bleiben immer noch in der Minderheit, Handelsblatt, Stand 28.12.2019.
-
4
Quelle: www.fertighaus.de, 15.07.2021.
-
5
Siehe dazu wohnsoziologische Anmerkungen zum Wohnen im Hofhaus (Gastbeitrag von Gerd Kuhn) in Kompakte Hofhäuser, S. 149 ff.
-
6
Siehe dazu: Werner Blaser, Atrium. Lichthöfe seit 5 Jahrtausenden, Basel 1985.
Helmut Schramm, Low Rise – High Density. Horizontale Verdichtungsformen im Wohnbau, Wien 2005. -
7
Siehe dazu: Ai Tee Goh, Courtyard Housing in the UK. Potentials for High Density Low Energy Urban Housing, Dissertation, University of Liverpool, 2010, Saarbrücken 2011.
-
8
Kompakte Hofhäuser, Anleitung zu einem urbanen Gebäudetyp, Hrsg. Hochschule für Technik Stuttgart HFT, Autoren: Jan Cremers, Peter Bonfig, David Offtermatt. Triest Verlag Zürich, 2021.
Titelbild
Bonfig / Cremers